Izsolīs nomas tiesības – telpām “Sakari”, Kabilē, Kabiles pagastā, 122.8 m2
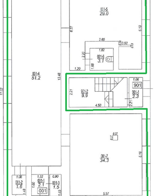
Kuldīgas novada pašvaldība mutiskā izsolē izsolīs nomas tiesības uz neapdzīvojamo telpu 001 nekustamajā īpašumā “Sakari”, Kabilē, Kabiles pagastā, Kuldīgas novadā, ar kadastra apzīmējumu 62580070332001001.
Mutiskā izsole notiks 2024. gada 1.jūlijā plkst. 13:45, Kuldīgas novada pašvaldībā, Baznīcas ielā 1, Kuldīgā, Kuldīgas novadā.
Nomas tiesību izsolē tiek piedāvāta pašvaldības nekustamā īpašuma “Sakari”, Kabile, Kabiles pagasts, Kuldīgas novads, neapdzīvojamo telpu grupa ar kadastra apzīmējumu 62580070332001001, platība 122,8 m2.
Izsoles nosacītā cena (sākumcena) ir 40,00 EUR (četrdesmit euro, 00 centi) mēnesī, neskaitot pievienotās vērtības nodokli.
Nomas līguma termiņš – 5 (pieci) gadi no līguma parakstīšanas dienas.
Mutiskās izsoles dalībnieku reģistrācija līdz 2024. gada 27.jūnija plkst. 17:00.
Mutiskās izsoles noteikumus un informāciju par īpašumu var saņemt Kuldīgas novada pašvaldības informācijas centrā Baznīcas ielā 1, Kuldīgā, Kuldīgas novadā. Informācija pa tālruni 63350413, e-pasts dome@kuldiga.lv
Nomas objektu var apskatīt patstāvīgi, vai darba dienās, iepriekš piezvanot un vienojoties par apskates laiku ar Kabiles pagasta pārvaldes vadītāju Elīnu Osi, tālrunis +371 27883494 (darba laikā 8:00-17:00).
